Revenir à la page d'accueil
< Retour

Rare appartement avec balcon proximité Mairie LILAS

Prix 750 000
Ref 13643

Description de l'offre

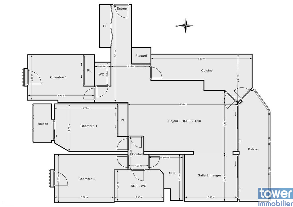
Rare sur le marché -Au cœur d’une résidence verdoyante, sécurisée avec Digicode/ interphone et parfaitement entretenue, à proximité immédiate des commerces, transports, écoles et espaces verts, laissez-vous séduire par ce magnifique appartement traversant Est/Ouest avec balcon dînatoire: clarté et soleil toute la journée, de 114 m2 au sol dont 103 m² carrez, situé au 5ème étage sur 7 avec ascenseur.
Un appartement qui baigne de lumière grâce à sa double exposition Est/Ouest et une vue totalement dégagée donnant sur le jardin de la résidence sans vis-à-vis, il allie l’élégance et le charme de l’ancien avec le confort moderne. Prestation de qualités parquet en chêne massif, moulures élégantes.Double vitrage sur l’ensemble de l’appartement avec une bonne note DPE en D de 199 KWh/m2/an et 6Kg co2/m2/an. Estimation des coûts annuels : entre 1 580 € et 2 180 € par an.
Aucun travaux à Prevoir !
Une distribution idéale pour la vie de famille :
•Grande entrée accueillante séparée avec de nombreux rangements intégrés.
•Double séjour spacieux intégrant une cuisine séparée de 50 m² carrez le tout ouvrant sur un balcon dînatoire ensoleillé, idéal pour profiter de moments conviviaux en famille (possibilité de créer une 4ème chambre)
•Cuisine actuellement indépendante et équipée de 11 m² carrez, avec la possibilité de l’ouvrir sur l’espace de vie pour encore plus de modernité
•3 belles chambres avec rangements intégrés, dont une avec balcon privatif
•Deux espaces d’eau : une salle de bains avec WC + une salle d’eau avec douche
•Deux WC (dont un séparé) pour un confort optimal au quotidien
Box fermé en sous-sol et cave viennent compléter ce bien d’exception à visiter sans tarder.
Tower immobilier, Steve Lévy Conseil immobilier -IDF- Résidentiel & Tertiaire 07 69 41 41 42, RSAC : 83748919400014.

Annonce immobilière rédigée sous la responsabilité éditoriale d'un agent commercial indépendant.

Les informations sur les risques auxquels ce bien est exposé sont disponibles sur le site Géorisques : www. georisques. gouv. fr

Avant toute visite immobilière, conformément à l'article L.561-5 du Code Monétaire et Financier en France (Loi Tracfin), les professionnels de l'immobilier sont dans l’obligation de demander une pièce d'identité valide (carte d'identité, passeport, etc.). Merci pour votre compréhension.

Annonce proposée par un agent commercial

Description du bien

5
Pièces
103
3
Chambres
Label Value
Code postal 93260
Surface habitable (m²) 103 m²
Surface loi Carrez (m²) 103 m²
Nombre de chambre(s) 3
Nombre de pièces 5
Etage 5
Nombre de niveaux 1
Ascenseur OUI
Vue DEGAGEE
Label Value
Nb de salle de bains 1
Nb de salle d'eau 1
Cuisine SEPAREE
Type de cuisine EQUIPEE
Interphone OUI
Balcon OUI
Terrasse NON
Nombre de garage 1
Cave OUI
Surface cave (m²) 1
Exposition SUD
Année de construction 1990
Label Value
Copropriété NON
plan de sauvegarde NON
statut du syndic pas de procédure en cours
Label Value
Prix de vente honoraires TTC inclus 750 000 €
Charges 270 €
Taxe foncière annuelle 3 334 €
DPE
DPE
Label Value

Contacter l'agence

* Champs obligatoires

* : Les informations recueillies sur ce formulaire sont enregistrées dans un fichier informatisé par La Boite Immo agissant comme Sous-traitant du traitement pour la gestion de la clientèle/prospects de l'Agence / du Réseau qui reste Responsable du Traitement de vos Données personnelles. La base légale du traitement repose sur l'intérêt légitime de l'Agence / du Réseau. Elles sont conservées jusqu'à demande de suppression et sont destinées à l'Agence / au Réseau. Conformément à la loi « informatique et libertés », vous disposez des droits d’accès, de rectification, d’effacement, d’opposition, de limitation et de portabilité de vos données. Vous pouvez retirer votre consentement à tout moment en contactant directement l’Agence / Le Réseau. Consultez le site https://cnil.fr/fr pour plus d’informations sur vos droits. Si vous estimez, après avoir contacté l'Agence / le Réseau, que vos droits « Informatique et Libertés » ne sont pas respectés, vous pouvez adresser une réclamation à la CNIL. Nous vous informons de l’existence de la liste d'opposition au démarchage téléphonique « Bloctel », sur laquelle vous pouvez vous inscrire ici : https://www.bloctel.gouv.fr Dans le cadre de la protection des Données personnelles, nous vous invitons à ne pas inscrire de Données sensibles dans le champ de saisie libre.
Ce site est protégé par reCAPTCHA, les Politiques de Confidentialité et les Conditions d'Utilisation de Google s'appliquent.

Nos outils

Ajouter à ma selection
Calculette Financière
Imprimer la fiche

Partager le bien

Facebook
Twitter
E-mail

La ville de Les Lilas